Red Hall planning brief

Contents

  1. Introduction
  2. Planning Policy Context
  3. The East Leeds Extension
  4. The East Leeds Orbital Road
  5. Development Opportunity and Design Principles

1. Introduction

Purpose of this document

This document sets out the overarching planning and development principles for the Red Hall site, as part of a consistent approach to guiding development proposals across the East Leeds Extension. It will help developers to prepare proposals for the site, but will also provide others interested in the Red Hall area, including local residents and adjoining land owners with an understanding of the scope for development and the underlying planning principles.

This document has been developed with input from a range of statutory consultees (including Sport England and English Heritage) residents and other interested local parties, including the Rugby Football League based at Red Hall itself. 

Red Hall has been a house and estate since the 1650s but with many changes and additions in the 1800s including the new turnpike road built between Roundhay and Wetherby. Since the 1960s a large part of the site has been developed as a nursery and operational depot for Leeds City Council Parks and Countryside Department.

The 28 hectare site lies to the north of Leeds and is bounded by agricultural fields and woodland to the north and west, the A6120 Leeds Outer Ring Road
and housing to the south, and the A58 Wetherby Road to the east.

The site today is composed of three distinct parts: 

Operational Council Nursery and Depot - Approximately 18 ha has been used by the council as a horticultural nursery, composting, and office accommodation since the 1960’s. The site is expected to be vacated in late-2016 primarily to a new purpose-built facility at nearby Whinmoor Grange.

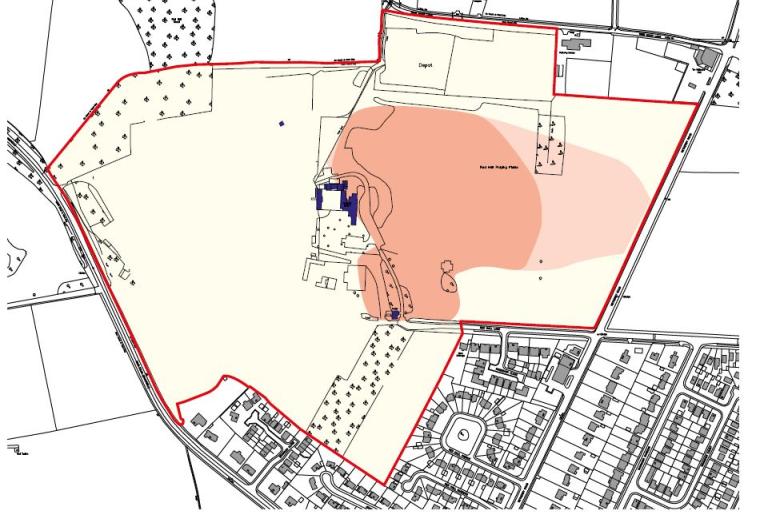
Playing fields - Approximately 11 ha of Red Hall is land formerly used as playing fields with a 6 team changing block, now unused. This area was previously laid out as 5 sports pitches (4 football and 1 rugby league) but these have not been in formal use since 2006, as a result of ongoing drainage issues that were proving too costly to address in a sustainable way. Parts of the playing fields remain in a water-logged state for a large part of the year but the area remains capable of use for informal amenity purposes.

The Red Hall listed buildings - These are within the middle of the site, owned and occupied by the Rugby Football League as its headquarters.

There are no proposals in this document for this part of the site but its setting and functions as an operational listed building require protection and enhancement.

Site context

Development at Red Hall was first mooted in the early 1990s when work on the Local Plan for Leeds was started. With the Parks and Countryside Service relocating its operational facilities to Whinmoor Grange and the strategic infrastructure proposals for the East Leeds Orbital Road coming forward there is a need to consider a new future for the site, including how open space can be incorporated and improved as part of a development scheme.

Red Hall land aerial view showing red line boundary which includes fields, trees and buildings
Red Hall boundary image from an 1849 map
Red Hall boundary overlaid with a current map, showing the additional changes from 1849, including housing outside of the boundary lines

2. Planning policy context

Various forms of development at Red Hall have been proposed in planning policy documents since 1990, supported by proposals for an orbital road (previously referred to as the Seacroft/Cross Gates bypass or the North East Leeds Relief Road). The Red Hall site was provisionally allocated in the Unitary Development Plan (2001) and formally allocated for development in the Leeds Unitary Development Plan Review (UDPR) 2006.

The UDPR policies which allocate land at Red Hall are E4:11 Key Business Park, H3-3A.33 Housing (part of the East Leeds Extension) and H3-2A.03 Housing.

Since 2006 there has been no evidence of demand for new office development at Red Hall due to the availability of much better located business parks
with motorway accessibility and planning consents elsewhere in the city. It is also now directly contrary to national and local policy to locate offices away
from city and town centres and so the allocation is no longer supported on sustainability grounds. As such, it is now proposed that this element of
the site should also come forward for residential development as part of a comprehensive redevelopment scheme.

The Core Strategy was adopted in November 2014 setting a target of 66,000 (net) new homes to be delivered across the city by 2028. Within the Leeds Local Development Framework, the Site Allocations Plan will allocate sites that will help to deliver the Leeds Core Strategy long term spatial vision, objectives and policies and in particular ensure that sufficient land is available in appropriate locations to meet the housing growth targets.

The Site Allocations Plan (SAP) will supersede the UDPR. A Publication Draft was consulted upon in late 2015 and is due to move to Examination in Public in Autumn 2017. The SAP Publication Draft proposed to allocate the whole of the Red Hall site for housing (with the exception of Red Hall itself), along with the associated policy requirements for greenspace and the matters outlined in this Brief.

At Red Hall the Site Allocations Plan at both Issues and Options stage (June 2013) and Publication Draft stage (September 2015) proposed that the land currently covered by the UDP business park allocation is a site which is better allocated for housing when considered with others in the City and against the need to deliver the City’s housing growth targets by 2028. The remainder of the Red Hall site, excluding the RFL land and listed buildings, is confirmed as an existing housing allocation carried forward from the 2006 UDP Review.

Housing development must provide on-site public open greenspace and linkages to the wider countryside beyond. The pitches at Red Hall have protection under the UDP Policy E4:11 (extant until superseded by the adoption of the Site Allocations Plan) whereby there is a requirement for their replacement if the site is developed. However, this part of the site is not allocated greenspace, and the intention for the pitch relocation dates back to the early 1990s. Redevelopment of the site as proposed by the Site Allocations Plan Publication Draft is therefore subject to the retention of a single area equivalent in size to at least two playing pitches, so that re-provision for formal sports is possible, or alternatively the space can be used for general open space provision. Any playing pitch re-provision will be done in line with a broader playing pitch approach for east Leeds.

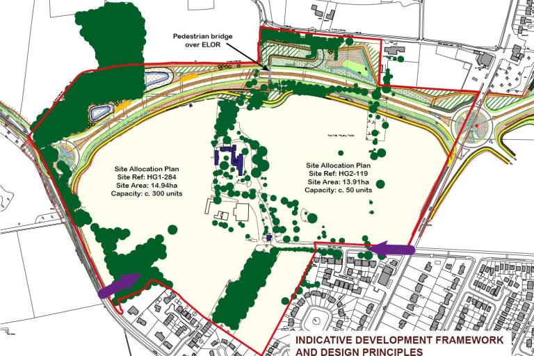
Immediately to the north of Red Hall is an area known as the ‘5 acre field’ which is currently Green Belt and which the Site Allocations Plan also proposes to incorporate within the Red Hall housing allocation. It would not be developed for housing itself (as the East Leeds Orbital Road will form the outer edge of the built up area) but provides the opportunity to provide partly for the route of ELOR around the edge of the site. It is anticipated that this part of the site will accommodate a pedestrian/cycle bridge over ELOR.

3. The East Leeds Extension

Red Hall forms the northern most part of a much larger allocation of land for residential development known as the East Leeds Extension (ELE) which stretches around the eastern edge of the Leeds main urban area adjacent to the Green Belt. The whole ELE with Red Hall included covers 232 hectares (with capacity for around 5,000 houses) and is best understood as four sections split by the existing main arterial roads through the area:

  • Section 1 – A6120 to A58: Red Hall
  • Section 2 – A58 to A64: Northern Quadrant
  • Section 3 – A64 to Leeds Road: Middle Quadrant
  • Section 4 – Leeds Road to the Leeds-York rail line: Southern Quadrant

In addition is the area from the Leeds-York rail line to M1: Thorpe Park. This is not a formal part of the ELE allocation but in view of its immediate proximity to the area and the scale of mixed uses coming forward, it is integral to the wider vision for growth.

Development of the ELE is to include housing, greenspace and ancillary uses such as neighbourhood shopping, education, and community facilities. Its urban edge location will allow residents to benefit from integrated services and facilities available within the city in adjacent neighbourhoods, while also creating a formal ‘edge’ to the urban area with a strategic green gap between it and the separate villages beyond. The overall vision for East Leeds Extension is shown on page 10.

Residential development proposals have already come forward for land adjoining Red Hall as part of the East Leeds Extension. A consortium of landowners submitted a planning application in 2012 for the Northern Quadrant between the A58 and A64. This included proposals for 2,000 houses, land for a primary school, a local centre with an opportunity for community/health buildings, together with details of the ELOR route through the site. The application states that the Northern Quadrant “will create a residential led, mixed use sustainable urban extension to Leeds of the highest design quality. It will deliver the first phase of the wider East Leeds Extension allocated in the adopted Unitary Development Plan Review 2006 to meet current and predicted future housing need and provide the first phase of the East Leeds Orbital Road to improve the quality of life for surrounding communities.”

In the remaining sections of the ELE, known as the Southern and Middle Quadrants between the A64 and Manston Lane, the Council is working with landowners and development interests to bring forward area-wide planning guidance that will assist proposals coming forward in a co-ordinated and phased way in relation to infrastructure requirements and local needs.

East Leeds Extension indicative route around East Leeds, from just east of the Leeds Golf Club around to future Thorpe Park and ending at the existing Thorpe Park (at the time of publishing)

4. The East Leeds Orbital Road

The progression of housing development in the ELE will be very closely linked to the provision of a new East Leeds Orbital Road (ELOR) which will define the outer edge of the built up area across the whole ELE. This will be a new dual carriageway road connecting the A6120 where it abuts Red Hall, around the edge of the allocation via the arterial routes of Wetherby Road (A58), York Road (A64) and Barwick Road, connecting to the M1 at Junction 46 through Thorpe Park via the new Manston Lane Link Road. The ELOR will have a dual purpose; to provide new strategic transport connectivity for east and north Leeds, and to open up the development of the ELE by providing new highway capacity to offset the impact of traffic growth on the existing network. It will include landscape buffers, drainage swales, and pedestrian/cycle routes as part of a larger ‘country park’ proposal around its outside edge.

The Northern Quadrant scheme will be required to construct a new roundabout junction with the A58 to form access for current and future residents. This junction will also form the junction with ELOR, providing for its westward connection around Red Hall to the A6120. In accommodating the appropriate design for this junction part of the Red Hall site will be dedicated to the works as an early phase of construction.

It is envisaged that the Northern, Southern and Middle Quadrants will have principal vehicular accesses from the junctions of ELOR with the existing arterial routes and so there will be a close relationship between the progression of housing proposals and the construction of the ELOR to ensure minimal impact on surrounding neighbourhoods and transport networks.

Leeds City Council is taking a leading role in planning, procuring and delivering ELOR and intends to construct the road as a single project which will open up access to development land across the ELE. The Council has secured funding from the West Yorkshire Combined Authority (via the West Yorkshire Transport Fund) to allow detailed feasibility, design and planning for the road, and has provisionally secured a significant grant contribution towards the delivery costs. However, this public grant will also need to cover a range of additional works to change the character and function of the A6120 between Red
Hall and Cross Gates and will be conditional upon significant third party contributions to the costs of the new road build.

The Council has determined that the third party contributions to ELOR should be funded by development across the East Leeds Extension via a ‘roof tax’ secured through either S106 or S273 agreements, based on payments to the council upon completion of each dwelling. The developments in each section of the allocation will be expected to assume the full cost of the road building in their respective sections. These roof tax contributions should be prioritised in the package of planning obligations and as part of development appraisals.

The ELOR route proposal and how its junctions could relate to the Red Hall site are contained within this brief. Although the site will not be accessed directly from ELOR, housing development across the ELE will contribute singularly and cumulatively to overall traffic growth in the area and thereby to the need for this new highway capacity. As such development at Red Hall will be subject to the ELOR roof tax to fund the section between the A6120 and A58.

current alignment of the East Leeds Orbital Route, correct at the time of publication

5. Development opportunity and design principles

Red Hall is an important strategic site that offers the potential to accommodate up to 400 new homes, which will help the city to meet its housing growth targets. Development proposals must meet the policy requirements of the Core Strategy and Council’s Neighbourhoods for Living Supplementary Planning Document. Notably, development proposals must take advantage of the site’s prominent and attractive location in north Leeds to deliver:

  • a development that protects and enhances the setting and use of the Red Hall Grade II listed buildings;
  • easy access to both the strategic road network, the adjacent open countryside and Roundhay Park;
  • new and improved public open space and retention of key existing natural features, maintaining access to playing spaces and improving drainage, sustainability and usability;
  • a design approach that will maximise ‘liveability’ of new development;
  • links to a new network of public green space stretching through and around the outside of the East Leeds Extension;
  • new pedestrian and cycle links both for leisure and commuting;
  • the westernmost section of the East Leeds Orbital Route.

The following sections include site specific guidance as well as three plans which show indicative design solutions for the site as a whole which include suggestions to address access, greenspace provision, and the areas for development.

Areas of Development and Listed Buildings

The Red Hall listed buildings are important heritage assets for the local area and city that add value to their surroundings. They are a well-known local landmark whose prominence needs to be respected and responded to sympathetically in the future development of the site. It is vital that the sense of place, history and culture that Red Hall imparts to the area is retained and enhanced.

Red Hall was built in the 1640s with its principal outlook to the east. Views to the east were utilised principally to take advantage of the countryside setting, with views of the house appreciated from the formal approach. Development to the east of the house needs to therefore have consideration of this landscape setting and allow views back towards the house. A wide landscaped area to the east of the listed building will protect these important and carefully designed views, and will also allow the listed building to protect its outlook and setting, which are significant features in the special interest of the principal designated heritage asset. 

Development to the rear of the listed building complex (the west) is much less sensitive to the character of the listed buildings due to it being already developed for the nursery. However, development here should still improve the setting of the main complex and take into account listed, and curtilage listed, outbuildings. As such, much of the new development is expected to be to the west of the listed buildings, with more limited development to the east, where pitch reprovision is expected to take place, taking into account views of Red Hall and its historic setting.

The dovecote is a separate building and is an important part of the listed building complex. It is essential that the building is recognised in any layout and brought into viable use. The dovecote must be improved as part of the wider development of the site and a sustainable future for it identified.

Red Hall boundary area indicating a central area of highest sensitivity

The Rugby Football League

The RFL is a high profile and valued employer in the city. Its operational needs as an owner and occupier at the heart of the Red Hall site must be maintained in the approach to place-making and during the process of any redevelopment.

Green Space and the Natural Environment

The Core Strategy’s Greenspace policies must be applied when preparing development proposals. Key site specific greenspace principles are to:

  • recognise the importance of amenity space currently available and retain the benefits of this for local people so that if it is smaller in scale it is higher in quality;
  • augment the spine road (see ‘Access’) and views through the site with green corridors creating an impression of space on principal routes, allowing for higher densities elsewhere on site;
  • extend the ’country park’ concept around outside of the whole ELE. Improving links to adjoining neighbourhoods;
  • create links to Roundhay Park, and maintain/improve existing public rights of way across the site;
  • deliver drainage solutions which take advantage of sustainable soakaways/swales and combined use of greenspaces to provide these;
  • veteran trees and mature landscape to be retained for the benefit of new development as far as possible.

There is scope for the overall area of amenity space currently provided at Red Hall to be reduced so that the necessary funding can be generated from development for investment in a viable area of retained open space. It is important that any retained open space is adequately drained, to secure its long term sustainable use. Any playing pitches not to be retained on site will be re-provided in the wider east Leeds area.

The exact location of the retained green space area equivalent in size to at least two playing pitches can be flexible but it will need to be accessible for visitors to the site, relate well to existing and new dwellings, and contribute to the protection of the Red Hall listed building complex.

Design

Leeds City Council has established Ten Urban Design Principles, which should be embodied in the design process. In addition, the principles in the following sections must be taken into consideration.

  • Adopt shared spaces and high quality surface materials where possible, creating safe and liveable environments which accommodate cars without prioritising them, and which provide appropriate settings for the buildings which define them.
  • Block Structure / Density / Links - Green corridors and spaces create open settings which support higher densities, but also create an impression of openness for the development as a whole – they set a scene which then allows for greater densities within the blocks themselves. Traditional villages are often very dense, yet remain highly desirable and aspirational places to live.
  • Housing Typologies and Character - extend and build on aspects of existing local character which are already popular and which complement the semi-rural estate setting of Red Hall.

Access

Although ELOR will be the principal element of infrastructure associated with the site, access to development at Red Hall will not be taken from the ELOR or its roundabout junctions. Careful consideration will need to be given to ensure that there is adequate internal road infrastructure which enables public transport provision but differentiates between strategic and local journeys.

A Travel Plan will be required in line with the Core Strategy Policy T2 and the Travel Plans Supplementary Planning Document adopted in February 2015. Please refer to the Council’s website or contact the TravelWise team on travelwise@leeds.gov.uk or 0113 395 0276.

Affordable & Older People’s Housing

A minimum of 15% affordable housing will be required in line with the Council’s Core Strategy Policy H5. Of this, the policy requirement equates to 40% social rented housing and 60% sub market / intermediate housing. This should be ‘pepper potted’ throughout the site, and should be indistinguishable from the equivalent market housing. The size of such housing will be dependent on local need and will be the subject of further discussion with the Council at the preapplication stage.

The Council currently has no specific requirement for older people’s housing on this site, but would welcome discussions with developers that may seek to provide such dwellings either of a specialist nature (such as extra care) or for more general market sale.

Key features of site

Illustrative locations of significant landscape features in Red Hall, mainly on the left-side boundary and through the centre of the area
Red Hall boundary showing a highlighted area in the centre representing the highest heritage sensitivity area
Route of East Leeds Orbital Route overlaid onto the Red Hall development site (correct at the time of publication)
Red Hall boundary and ELOR route map overlay with landscape features and additional pedestrian bridge towards the top centre of the boundary area over ELOR

Key:

Listed buildings key, dark purple shapes to indicate these buildings

Listed Buildings

Protect listed buildings and their settings as far as possible

 

 

Landscape assets key, with landscape features shown as green and often circular shapes

Existing Landscape Assets

Retain veteran trees and mature landscape to the benefit of new development as far as possible

 

 

ELOR key

ELOR

Proposed highway alignment - maximise the developable area, avoiding veteran trees as far as possible, whilst remaining within the red line site boundary.

 

 

purple arrow to indicate potential access points on the map

Potential Access Points

Proposed site access subject to detailed design and modelling.

 

 

Education

The site is not considered a suitable location to provide for new school places. Land for a primary school will be provided at the nearby Northern Quadrant, whilst secondary provision for the wider east and north east Leeds area will be accommodated at other sites. Therefore no specific payment or requirement for school provision onsite is necessary. The Council’s CIL receipts will help to fund education across the District.

Health

To support the wider East Leeds Extension, there will be a requirement for additional health facilities and it is expected that these will be located close to other community facilities within new or nearby existing local centres, in consultation with NHS England and the relevant Clinical Commissioning Groups. As such, it is not a requirement for the Red Hall site to incorporate such facilities.

Drainage

The City Council commissioned a drainage study for the site which was undertaken by Mouchel in 2014. This set out a range of options to meet drainage requirements, including the use of bore holes and SUD systems which could be incorporated into dual function green corridors and spaces. Some properties which adjoin the site have historically experienced flooding due to the geology of the area. Therefore it is important for developers to give careful consideration to the drainage solution to be adopted.

Sustainable Construction

In preparing development proposals, developers will be expected to apply the principles set out in the Core Strategy (Policies EN1 and EN2) and the Sustainable Design and Construction SPD.

Community Infrastructure Levy

The Leeds Community Infrastructure Levy (CIL) was implemented in April 2015. The Red Hall site sits within Zone 2a of the CIL residential Charging Schedule and therefore new residential floorspace will be CIL liable at a rate of £23 per square meter (index linked each year). Further information is on the CIL page of the Council’s website: http://www.leeds.gov.uk/council/Pages/Community-Infrastructure-Levy.aspx The CIL rates may be
reviewed in late 2016/17 and therefore may increase or decrease for the Red Hall site, as the rate used is that current on the date that planning permission is granted.

Before submitting a planning application for redevelopment of the site, applicants are encouraged to contact the City Development Department to agree the information required as part of the planning application submission, including a Design and Access Statement, and Statement of Community Involvement. However, there will be a fee charged for this advice. For further information, please refer to the website or contact the Development Enquiry centre on 0113 222 4409.

Red Hall key contacts:

Kathryn Holloway
Team Leader
Local Plans East
email: Kathryn.Holloway@leeds.gov.uk

Mark Mills
Executive Manager Regeneration
Asset Management & Regeneration
email: Mark.Mills@leeds.gov.uk

Mary Stockton
Deputy Head of Land & Property
Asset Management & Regeneration
email: Mary.Stockton@leeds.gov.uk

City Development
Leeds City Council

Printable version